空き家バンク
物件詳細
物件番号:A306号
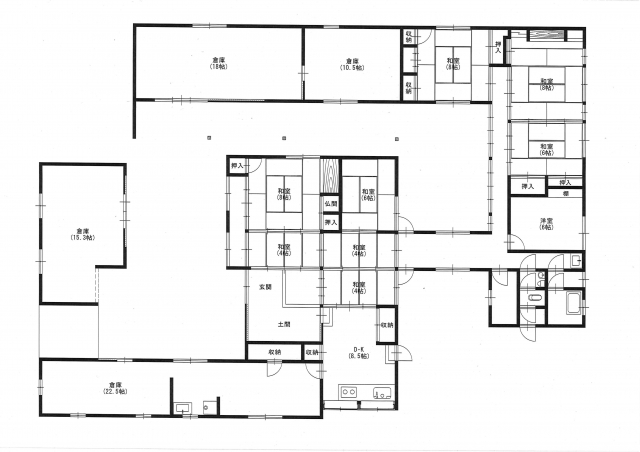
志知難波 木造平屋建て
広々とした敷地の平屋建て物件です
※画像をクリックすると拡大表示されます。
| 価格 | 売買 480万円 | ||
| 所在地 | 南あわじ市志知難波 | ||
| 構造 | 木造 | 物件の利用状況 | 放置・空き家(-年) |
| 付帯施設等 | 農地(田・畑) | ||
| 敷地面積 | 655. 24 ㎡ (198. 21 坪) | 延床面積 | 235. 58 ㎡ (71. 26 坪) | ||
| 農地面積 | 225 ㎡ (68. 06 坪) | 築年 | S44年築 | 間取り | 9DK |
| 設備 | |||
| 電気 | 引き込み済み | ガス | プロパン |
| 水道 | 上水道 | 下水道 | 汲み取り |
| トイレ | 和式 1箇所 | 風呂 | ガス |
| 車庫 | なし | ||
| 庭 | あり(花壇、家庭菜園等 可) | ||
| 収納 | あり | ペット | 可 |
| 備考 | ・建物は未登記(表示面積等は課税台帳による) ・公共下水道桝引き込み済み(未接続) ※田の購入には農業委員会の許可が必要です。 詳しくは南あわじ市農業委員会にお問合せ下さい。(直通0799-43-5236) ※内覧の際は南あわじ市空き家バンク利用者登録が必要です。 |
||
| 周辺施設 | |||||
| 市役所 | 2. 9km | 金融機関 | 2. 3km | 郵便局 | 0. 5km |
| 病院・診療所 | 2. 5km | 幼稚園・保育所 | 0. 8km | 小学校 | 1. 3km |
| 中学校 | 2. 5km | 高校 | 3. 3km | スーパーマーケット | 1. 1km |
| コンビニ | 1km | 薬局 | -- | ガソリンスタンド | -- |
| 警察署 | 1. 2km | 消防署 | 1. 4km | 公園 | -- |
| この物件に関するお問い合わせ先 | |
| 名称 | 株式会社リブレ |
| 住所 | 南あわじ市福良甲1533-3 |
| TEL | 0799-52-0497 |
| HPアドレス | http://www.liv-re.co.jp/ |






