空き家バンク
物件詳細
物件番号:A300号
伊加利 木造平屋建て
賃貸物件です
※画像をクリックすると拡大表示されます。
| 価格 | 賃貸 月額 2. 2万円 | ||
| 所在地 | 南あわじ市伊加利 | ||
| 構造 | 木造 | 物件の利用状況 | 放置・空き家(-年) |
| 付帯施設等 | なし | ||
| 敷地面積 | 307. 43 ㎡ (92. 99 坪) | 延床面積 | 81. 81 ㎡ (24. 74 坪) | ||
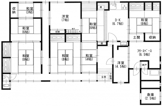
| 農地面積 | -- | 築年 | M12年築 | 間取り | 10DK |
| 設備 | |||
| 電気 | 引き込み済み | ガス | プロパン |
| 水道 | 上水道 | 下水道 | 汲み取り |
| トイレ | 和式 1箇所 | 風呂 | ガス 給湯器を交換すれば使用可 |
| 車庫 | なし | ||
| 庭 | あり(花壇、家庭菜園等 可) | ||
| 収納 | なし | ペット | 不可 |
| 備考 | ※大幅な修繕が必要。 ※内覧の際は南あわじ市空き家バンク利用者登録が必要です。 |
||
| 周辺施設 | |||||
| 市役所 | 10. 6km | 金融機関 | 3. 7km | 郵便局 | 3. 7km |
| 病院・診療所 | 0. 8km | 幼稚園・保育所 | 0. 2km | 小学校 | 3. 5km |
| 中学校 | 9. 4km | 高校 | 11. 7km | スーパーマーケット | 4. 2km |
| コンビニ | 4. 6km | 薬局 | -- | ガソリンスタンド | -- |
| 警察署 | 1. 9km | 消防署 | 6. 3km | 公園 | -- |
| この物件に関するお問い合わせ先 | |
| 名称 | 株式会社リブレ |
| 住所 | 南あわじ市福良甲1533-3 |
| TEL | 0799-52-0497 |
| HPアドレス | http://www.liv-re.co.jp/ |






